


- Productnummer
- IF5x5+2Z
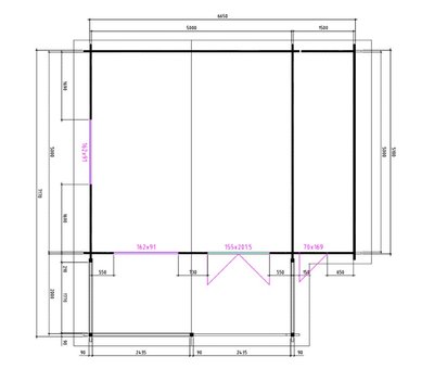
Blokhut 5x5+2Z Interflex 695x745x280cm met Veranda 200 cm + Zijaanbouw 150 cmWanddikte 50 mm
Vanaf
9.306,-
De Interflex Blokhut 5x5+2Z is een luxe buitenverblijf van bijna 7 bij 7,5 meter met een grote veranda en zijaanbouw. De 50 mm dikke wanden en het isolatieglas maken dit model geschikt voor elk seizoen. De indeling met meerdere toegangen biedt veel mogelijkheden voor gebruik als gastenverblijf of kantoor. Een compleet en hoogwaardig tuinhuis voor de liefhebber van ruimte en comfort.
Details
Wanddikte
50 mm
Op voorraad
Binnen 5 - 7 weken geleverd
Binnen 5 - 7 weken geleverd
Per stuk,vanaf
9.306,-
Plus- en minpunten
Uitstekende kwaliteit Scandinavisch Vurenhout
Met luxe veranda met luifel en zijaanbouw
Voorzien van luxe ramen en deuren
Stevige wanddikte 50 mm
Behandelen sterk aanbevolen (onbehandeld)
+31(0)50230615108:00 - 17:30
Chat met ons08:00 - 17:30
Stuur ons een e-mailBinnen 24 uur reactie
- Beoordeeld door onze klanten met een 8,4/10
- Thuiswinkel Waarborg: gunstige service voorwaarden
- Snelle levering in de Benelux
Specificaties
- Merk
- Interflex
- Wanddikte
- 50 mm
- Houtsoort
- Scandinavisch Vuren
- Aantal ruimtes
- 1
- Dak type
- Zadeldak
Specificaties
- Merk
- Interflex
- Wanddikte
- 50 mm
- Houtsoort
- Scandinavisch Vuren
- Aantal ruimtes
- 1
- Dak type
- Zadeldak












